info@1000proektov.by +375 29 187-69-96

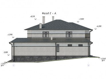
Проект дома из блоков 1637

Характеристики проекта:

Площадь(м²): 352.3
Материал стен: блоки
Количество жилых этажей: 2
Эскизный проект
650 руб.
Строительный проект
2100 руб.

Получить консультацию