info@1000proektov.by +375 29 187-69-96

Проект дома из блоков 1584

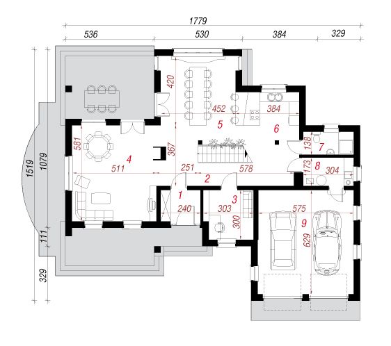
Характеристики проекта:

Площадь(м²): 247.8
Материал стен: блоки
Количество жилых этажей: 2
Эскизный проект
600 руб.
Строительный проект
2100 руб.

Получить консультацию