info@1000proektov.by +375 29 187-69-96

Проект дома из блоков 1-46

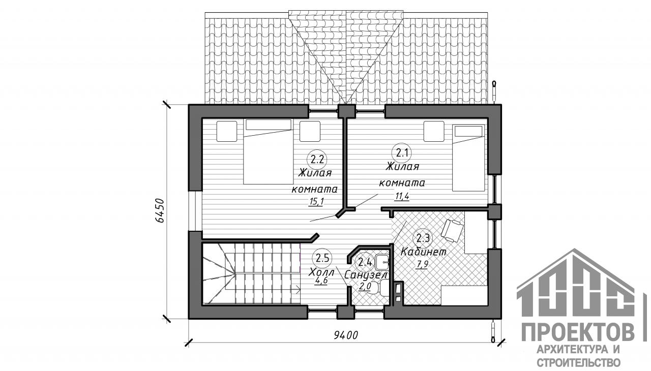
Характеристики проекта:

Площадь(м²): 102.9
Материал стен: блоки
Количество жилых этажей: 1+мансарда
Эскизный проект
500 руб.
Строительный проект
1200 руб.

Получить консультацию