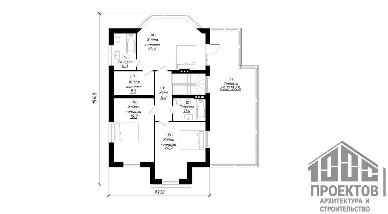
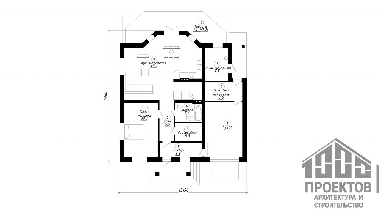
Проект двухэтажного дома из газосиликатных блоков площадью 246,65м2. На 1м этаже в проект включены большая гостиная, совмещенная с кухней, мини-котельная, подсобное помещение, гардеробная, жилая комната, санузел и гараж. На 2м этаже будут 4 жилые комнаты, 2 санузла и терраса.
Фундамент – свайно-ростверковый
Материал стен – блоки газосиликатные
Перекрытия – монолитное
Покрытие кровли – металлочерепица
Фундамент
Свайно-ростверковый с черновой стяжкой
Терраса-черновая стяжка
Крыльца
Стены
Газосиликатные блоки Наружные стены 400 мм + утепление фасада мин.ватой - 50мм Несущие внутренние стены - 300 мм Перегородки - 120 мм