Характеристики проекта:
Получить консультацию
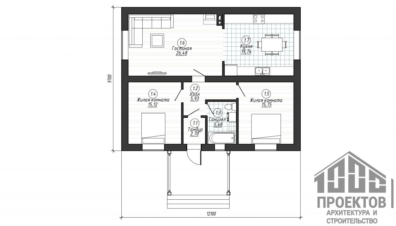
План 1-го этажа
Проект одноэтажного дома из газосиликатных блоков площадью 91,4м2. В проект включены 2 жилых комнаты, гостиная, совмещенная с кухней и санузел.
Состав эскизного проекта:
Или напишите нам