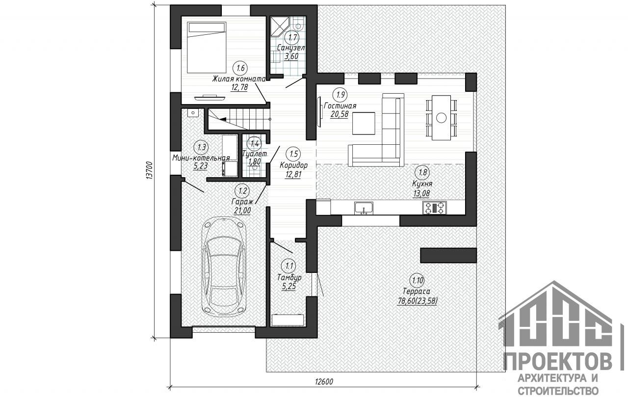
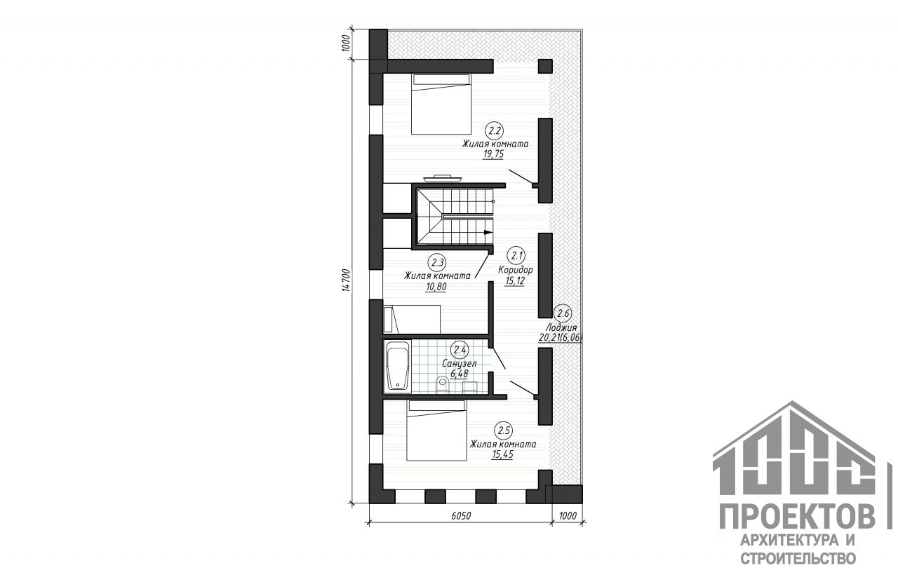
Проект двухэтажного дома из газосиликатных блоков площадью 193.37 м2. На первом этаже в проект включены большая кухня-гостиная, жилая комната, просторный холл, раздельный санузел, топочная, гараж и комфортабельная терраса. На втором этаже будут 3 жилые комнаты, санузел и лоджия.
Фундамент – свайно-ростверковый
Материал стен – блоки газосиликатные
Перекрытия – монолитное
Покрытие кровли – мембрана для плоской кровли
Фундамент
Свайно-ростверковый с черновой стяжкой
Терраса-черновая стяжка
Крыльца
Стены
Газосиликатные блоки Наружные стены 400 мм + утепление фасада мин.ватой - 50мм Несущие внутренние стены - 300 мм Перегородки - 120 мм