info@1000proektov.by +375 29 187-69-96

Проект деревянного дома 3-2

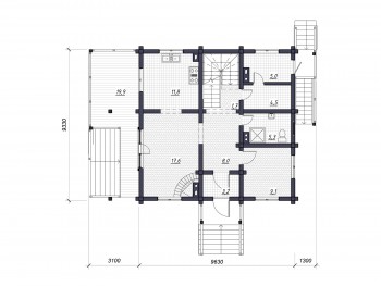
Характеристики проекта:

Площадь(м²): 212.88
Материал стен: дерево
Количество жилых этажей: 1+мансарда
Эскизный проект
600 руб.
Строительный проект
2100 руб.

Получить консультацию