info@1000proektov.by +375 29 187-69-96

Проект деревянного дома 3-13

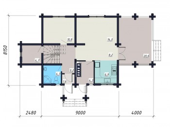
Характеристики проекта:

Площадь(м²): 129.52
Материал стен: дерево
Количество жилых этажей: 1+мансарда
Эскизный проект
500 руб.
Строительный проект
1200 руб.

Получить консультацию