info@1000proektov.by +375 29 187-69-96

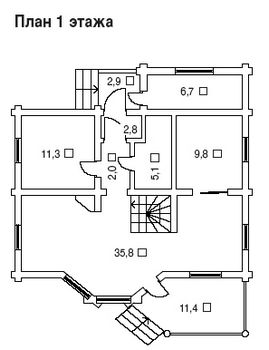
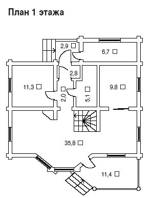
Проект деревянного дома 1551

Характеристики проекта:

Площадь(м²): 147.7
Материал стен: дерево
Количество жилых этажей: 1+мансарда
Эскизный проект
500 руб.
Строительный проект
1200 руб.

Получить консультацию