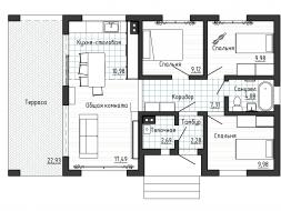
Проект одноэтажного дома в стиле Barnhouse площадью 80,79 м2. Может быть использован как дачный, но в тоже время подойдет для постоянного проживания. Планировка довольно проста, но максимально комфортна: светлая кухня, где у широких окон можно разместь стол для семьи и гостей. Кухня совмещена с гостиной и имеет выход на просторную террасу, где можно встречать утро за чашечкой ароматного кофе. Спроектировано 3 небольшие спальни, для создания личного пространства каждого члена семьи. Небольшой санузел, но при этом вместительный для всей необходимой сантехники. Этот проект создан для вашего комфорта.
Фундамент – свайно-винтовой.
Материал стен – «каркасного типа» (толщина утеплителя 200мм), с обшивкой имитацией бруса.
Высота 1-го этажа – 2,65м.
Покрытие кровли - фальц.
Архитектурные(эскизными) решения - раздел проектной документации, в котором изложено авторское видение архитектурного объекта. Комплект чертежей Эскизного решения не является основанием для строительства дома. АРХИТЕКТУРНЫЙ ПРОЕКТ необходим для получения разрешения на строительные работы в местных органах архитектуры, а также в дальнейшем для разработки РАБОЧЕГО И ИНЖЕНЕРНОГО ПРОЕКТОВ, по чертежам которых непосредственно и осуществляется строительство дома!