Характеристики проекта:
Получить консультацию
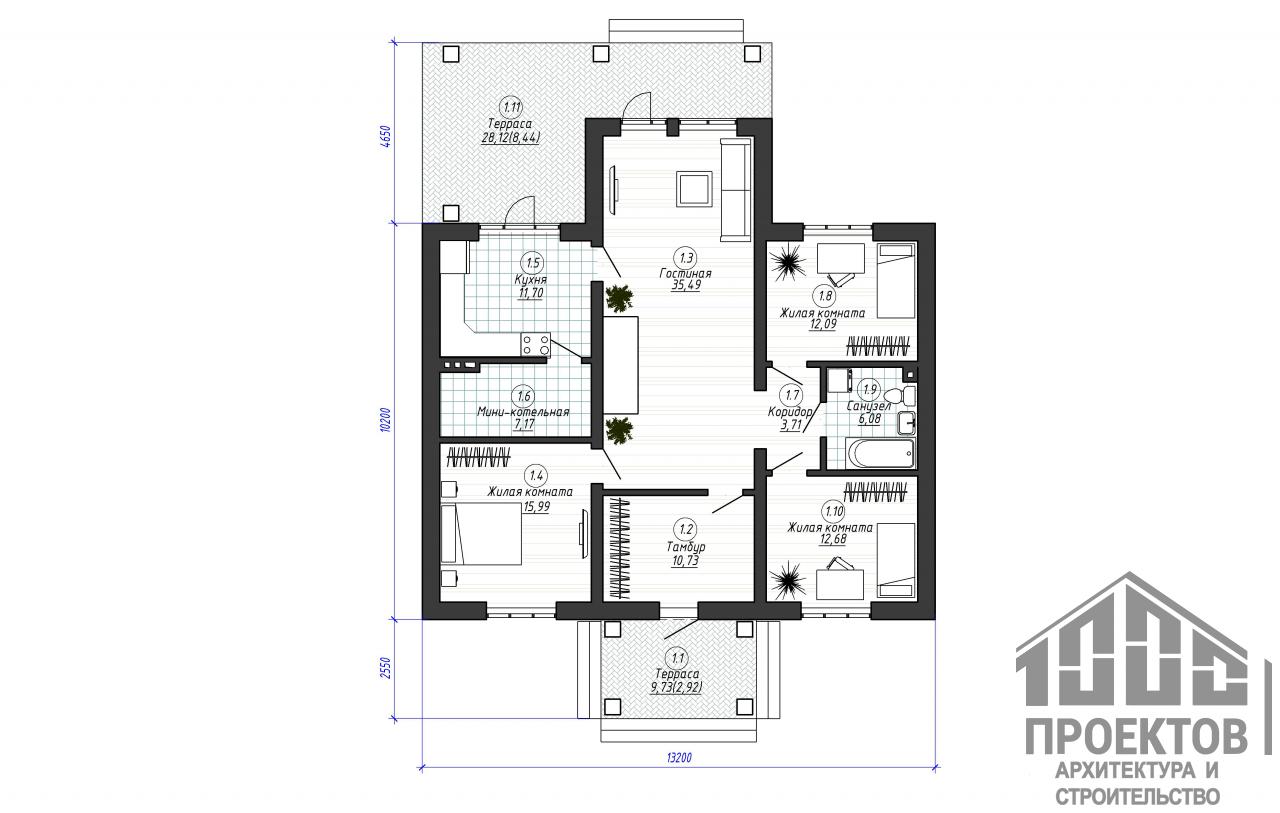
План 1 этажа
Проект одноэтажного дома из газосиликатных блоков площадью 127м2. В проект включены 3 жилых комнаты, гостиная, совмещенная кухня, гостиная и санузел.
Состав эскизного проекта:
Или напишите нам