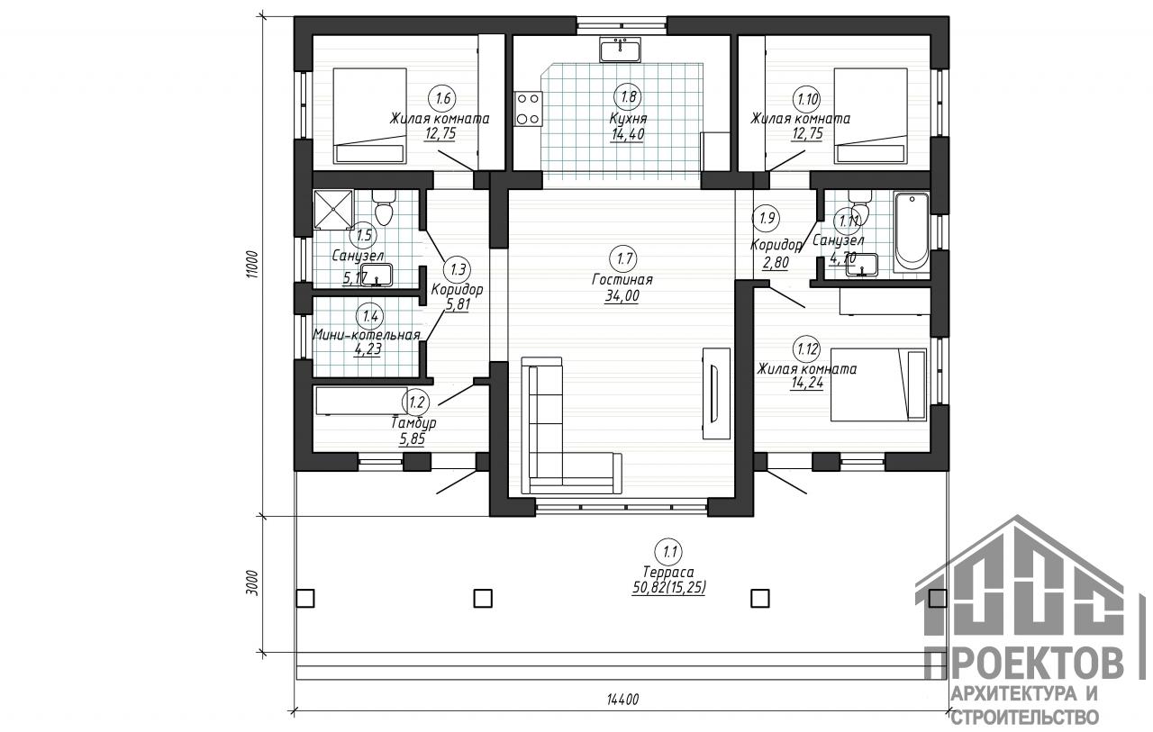
Проект дома общей площадью 131,95м2. Продуманная планировка и удачное расположение помещений делают дом по-настоящему комфортным. Там разместились большая кухня-гостиная с панорамными окнами в центре дома, подчеркивает ощущение простора, три просторные спальни, два сан. узла и гардеробная. В таком доме можно с комфортом принимать большое количество гостей.
Фундамент – свайно-ростверковый
Материал стен – блоки газосиликатные
Покрытие кровли – мембрана для плоской кровли
Фундамент
Свайно-ростверковый с черновой стяжкой
Терраса-черновая стяжка
Крыльца
Стены
Газосиликатные блоки. Наружные стены 400 мм + утепление фасада мин.ватой - 50мм. Несущие внутренние стены - 300 мм. Перегородки - 120 мм.